3116 Gillespie Trail N London South, ON N6P 0K6
Inscription par: PropTX - IDX / Century 21 First Canadian Corp. Brokerage / Amin Chehadi

  3116 Gillespie Trail N London South, ON N6P 0K6

En vigueur
645 703 $ (USD)
4
CAC
3
SDB
2000-2500
PI. CA.

Description

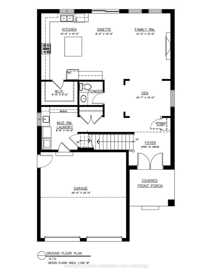
The McLaren - A beautifully crafted 2-storey home offering 2,305 sq. ft pf thoughtfully designed living space featuring 4 spacious bedrooms, 2.5 bathrooms, and a layout that blends functionality with modem comfort. The main floor boasts a bright, open-concept design with a welcoming family room, generous dinette, and a versatile den-perfect for a home office, study, or playyoom. Upstairs, you' Il find a convenient second-floor laundry room, two full bathrooms, and four large bedrooms, including a private primary ideal for relaxation. The McLaren IS the perfect choice for growing families or those seeking space, style, and comfort-all under one roof. Built by Birani Design & Build, a trusted name m London's construction community, this home features exceptional craftsmanship and thoughtful design in Talbot Village - Phase 7, one of the city's most sought-aner communities. This IS your chance to live in a mature, family-friendly neighbourhood that's quickly becoming one of London's most desirable places to call home. Phase 7 offers a fantastic location, with a brand-new public school opening in 2025, and is within walking distance to Ecole élémentaire La Pommeraie (French public school), parks with basketball courts, soccer fields and scenic trails winding around tranquil ponds. Talbot Village Shopping Plaza is just minutes away, offering No Frills, Dollarama, restaurants banks, GoodLife Fitness, medical clinics, and more. Even greater convenience is coming with a new commercial plaza set to Include a veterinarian, dental clinic, Starbucks, and other exciting businesses. The brand-new YCMA, only a short walk away, brings state-of-the-art health and wellness services to the neighbourhood. Commuting is a breeze with quick access to Highways 401 & 402, perfect for reaching St Thomas or the beaches of Port Stanley. Prefer a greener option? Enjoy the new bike lanes on Colonel Talbot Road, connecting you to nearby Lambeth' s small-town charm. To be Built.

MLS®:
X12774950
Surface Terrain
4,530 PI. CA.
Catégorie
Single-Family Home
Style
2-Storey
Vue
Clear
Ville
Middlesex County
Communauté
South V

Listed By

Amin Chehadi, Century 21 First Canadian Corp. Brokerage
Source
PropTX - IDX
Dernière vérification Avr 4 2026 à 3:56 AM PDT
Détails sur les salles de bains
Caractéristiques Intérieures
  • Sump Pump
  • Water Heater
  • Erv/Hrv
Caractéristiques de la propriété
  • Cheminée: Other
  • Foundation: Poured Concrete
Chauffage et refroidissement
  • Forced Air
  • Central Air
Informations sur les sous-sols
  • Unfinished
Informations sur le pool
  • None
Caractéristiques extérieures
  • Brick
  • Vinyl Siding
  • Toit: Shingles
Informations sur les services publics
  • Sewer: Sewer
  • Fuel: Gas
  • Energy: Energy Certificate: No
Garage
  • Attached
Stationnement
  • Private Double
  • Available
Étages
  • 2

Historique des prix des annonces

Date
Événement
Prix
% Variation en
$ (+/-)
Avr 01, 2026
Prix modifié
899 000 $
-10%
-100 000 $
Alimenté par Walk Score®
Disclaimer: Copyright 2026 Toronto IDX. All rights reserved. This information is deemed reliable, but not guaranteed. The information being provided is for consumers’ personal, non-commercial use and may not be used for any purpose other than to identify prospective properties consumers may be interested in purchasing. Data last updated 4/3/26 20:56